Byt 2+1, dva balkóny, 67m2, - Zvolen - Sekier
Výhody :
- dva balkóny jeden v byte druhý na medziposchodí
- nízke mesačné nájomné
- slnečný
- prerobený z 2-izbového na 3-izbový
Výhody :
- dva balkóny jeden v byte druhý na medziposchodí
- nízke mesačné nájomné
- slnečný
- prerobený z 2-izbového na 3-izbový
ID 160
Igor Ambrózy – expert na reality Vám v exkluzívnom zastúpení majiteľa ponúka na predaj zaujímavý byt 3+1 s dvomi balkónmi v meste Zvolen v časti Sekier, vhodný na bývanie, aj ďalšie prenajímanie.
VÝHODY: Perfektná poloha bytu, tiché prostredie, pekný výhľad, jeden balkón v byte, druhý na medziposchodí. Nízke náklady len cca 130 EUR+ elektrika a plyn. Byt je slnečný, orientovaný na juhovýchod. V blízkosti škôlka, škola, park, ihrisko pre deti, obchody, pošta, priehrada.
ROZLOHA : Byt má výmeru podľa Listu vlastníctva vrátane pivnice 63,44 m2 + cca 3,5 m2 má balkón. Z toho pivnica má cca. 1m2. Takže spolu cca. 67m2. Byt sa nachádza na 2. poschodí bytového domu s výťahom. Na medziposchodí sa nachádza ďalší spoločný balkón. Bytový dom je prerobený, zateplený, má novú strechu.
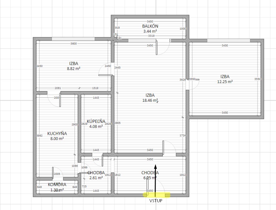
DISPOZÍCIA: Byt pozostáva z chodby, kúpeľne so sprchovým kútom a WC, kuchyne,komory, priestrannej obývačky s balkónom, spálne, pivnice. Byt je prerobený z väčšieho 2-izbového na 3-izbový. (Z kuchyne vznikla detská izba a je možné to dať naspäť ) viď pôdorys v galérii.
Nehnuteľnosť prešla čiastočnou rekonštrukciou :
-Podlaha v izbách plávajúca, v kúpelní je dlažba.
-Jadro je murované.
-Nová elektrika v jadre
-Stierky. Podhľady v chodbe a obývačke.
-Okná sú vymenené za plastové
-Bezpečnostné dvere Adlo.
-Komora v kuchyni - skvelý úložný priestor
V kúpeľni sa nachádza sprchový kút. Vstavaná kuchynská linka je šitá na mieru, súčasťou ktorej sú vstavané spotrebiče: elektrická rúra, varná doska, digestor.
Byt sa predáva zariadený ako je vidieť na foto.
K bytu prináleží murovaná pivnica cca 1 m2.
LOKALITA: Výborná občianska vybavenosť . Tiché prostredie,pekný výhľad. V blízkosti škôlka , škola, park, priehrada,ihrisko pre deti, obchody,zdravotné stredisko, lekáreň . V blízkosti autobusová zástavka.
Ak si tu viete predstaviť svoje bývanie a táto ponuka vás zaujala, tak neváhajte a zavolajte alebo napíšte mi ešte dnes a dohodnite si stretnutie. Čo keď ponuka zaujme viacerých a niekto vás predbehne...
Na cene aj obhliadke sa dá dohodnúť, stačí zdvihnúť telefón a zavolať mi na 0948 22 44 24, napísať na : igor@ambrozy.sk
© Všetky texty, obrázky, fotografie, videá, virtuálne prezentácie a 3Dprehliadky v inzercii a ďalšie tu uverejnené informácie, podliehajú autorským právam spoločnosti Amigo Real, s.r.o. Reprodukcia alebo opätovné použitie celku, alebo jeho častí nie je povolené bez písomného povolenia spoločnosti Amigo Real, s.r.o.
Ku kúpe Vám ponúkam vybavenie financovania od 0,59% v akcii. Bezplatne..... Energetický certifikát nie je vytvorený.
Viac info telefonicky alebo mailom. Volať prosím denne do 18.00, po tomto čase už nemusí byť telefón "po ruke" :-)
Ozvem sa Vám hneď druhý deň. Vďaka za porozumenie. ID 161.
Táto ponuka je zaradená vo výmennom systéme Realitnej únie SR, MLS DX. DX je v percentách :-)
Garantujeme dohodu najlepšej ceny! U nás máte možnosť využiť bezplatné poradenstvo o najvýhodnejšom financovaní už od 0,59% !
Nás špecialista spolupracuje s 11-timi bankami a vie vybrať tú najlepšiu ponuku šitú Vám na mieru :-) Bezplatná starostlivosť po skončení fixácie = máte tú najvýhodnejšiu sadzbu po celú dobu trvania úveru. Aj s poistením pri strate zamestnania. Ponuka, financovania, ktoré banky priamo neponúkajú...
Ak Vás tento byt zaujal a nechcete, aby Vás niekto predbehol, kontaktujte ma pomocou formuláru pod mojou fotkou a dohodneme si obhliadku.
alebo volajte, píšte:
Telefón : 0948 22 44 24
mail: igor@ambrozy.sk
Teším sa na Vás
Igor Ambrózy
